This page looks best with JavaScript enabled

45 Triple Wide Mobile Home Layouts Whimsical

 ·  ☕ 4 min read  ·  ❤️ Andreanne Hirthe

45+ Triple Wide Mobile Home Layouts Whimsical

.

A prefab home floor plan says a lot about a home. A triple wide mobile home is a prefabricated house that is made in three parts.


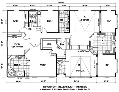
Triple Wide Mobile Home Floor Plans | Factory Direct ...
Triple Wide Mobile Home Floor Plans | Factory Direct ... from i.pinimg.com
Today we're delighted to declare we have discovered an awfullyinteresting contentto be pointed out, namely. Check out our triple wide homes. A mobile home (also known as a park home, trailer, trailer home, house trailer, static caravan, rv, residential caravan, motorhome or simply caravan) is a prefabricated structure, built in a factory on a permanently attached chassis before being transported to site (either by being towed or on a trailer).

Triple wide mobile homes floor plans.

Find the perfect triple wide manufactured we offer a wide variety of highly customizable triple wide floor plans, where you can personalize your mobile home's layout and number of bedrooms. The manufacturer for this home is deer valley homebuilders. Triple wide mobile homes double wide home new house plans house floor plans best modular homes mobile home doublewide mobile manufactured or mobile homes that are placed on a foundation will retain their value far longer than a manufactured home placed in a mobile home park. Home ideas triple wide mobile floor plans. We share a variety of mobile homes here at mobile home living. Triple wide mobile homes are built in three separate parts which are then united to create one home. Check out our triple wide homes. Having this kind of house may need more energy for maintaining the furniture and keep the house in clean and tidy condition. These homes consist of 3 separate units which travel to the homesite on their own chassis and wheels. Home/new home plans/amazing triple wide mobile home floor plans. Prefab homes for sale from manufactured home, modular home, and mobile home manufacturers and dealers across america. A mobile home (also known as a park home, trailer, trailer home, house trailer, static caravan, rv, residential caravan, motorhome or simply caravan) is a prefabricated structure, built in a factory on a permanently attached chassis before being transported to site (either by being towed or on a trailer). We have many triple wide mobile homes available. Generally, the three pieces are towed separately to a triple wide is much larger than a standard size mobile home and has more rooms and a larger floor plan. A prefab home floor plan says a lot about a home. However, for those looking for extra space, triple wide modular triple wides can range from 2 to 6 bedrooms, 4 bathrooms, and well over 3,000 square feet. View american dom triplewide floor plan for a 2293 sq ft palm. Today we're delighted to declare we have discovered an awfullyinteresting contentto be pointed out, namely. Triple wide mobile home floor plans ideal mfg homes manufactured. Growing in popularity, the large triple wide manufactured home offers maximum square footage. Click the image for larger image size and more details. We offer an extensive selection of double wide homes, ranging in price from budget sensitive to deluxe. There is much more layout customization possible with a triple wide mobile home. We have some best ideas of pictures to give you inspiration, choose one or more of these brilliant photos. Come check out these new mobile homes! Once at the home site related questions. With over 50 thousands photos uploaded by local and international professionals, there's inspiration for you only at kafgw.com. Thanks for visiting our site, contentabove (amazing triple wide mobile home floor plans) published by at. Offers a variety of new home floor plans from industry leading manufacturers. Triple wide homes aren't as common as double wide or single wide modular homes. Triple wide mobile homes floor plans.

Share on
https://antarcticoffended.com/frtepxh4?key=e717486216bcba1c2dfdfbe9981956d6